Produkt
Box Type Fixed Metal stängd switchutrustning
  • Box Type Fixed Metal stängd switchutrustningBox Type Fixed Metal stängd switchutrustning
  • Box Type Fixed Metal stängd switchutrustningBox Type Fixed Metal stängd switchutrustning
  • Box Type Fixed Metal stängd switchutrustningBox Type Fixed Metal stängd switchutrustning
  • Box Type Fixed Metal stängd switchutrustningBox Type Fixed Metal stängd switchutrustning

Box Type Fixed Metal stängd switchutrustning

De huvudsakliga primära komponenterna i XGN2-12 Box Type Fixed Metal Stängd switchutrustning speciellt producerad av Kexun i China Factory är alla omdesignade. Jämfört med Handcart-utrustningen och GG-1 (A) F-utrustning som huvudsakligen används för närvarande, har XGN2-12 Boxtyp Fixad metallstängd switchutrustning högre isoleringsnivå och skyddsnivå, och ingen fas-till-fas och fas-till-mark klaffar och isolerande gas används inuti, och ingen sekundärplugg används i den sekundära kretsen.
Modell: XGN2-12
Märke: kexr

● Modell betydelse

Box Type Fixed Metal Closed Switch Equipment

● Huvudsakligen tekniska parametrar för XGN2-12 Box Type Fixed Metal Stängd switchutrustning

Antal

Punkt

Enhet

Data

1

Betygsspänning

Kv

3,6,10

2

Max driftsarbetsspänning

Kv

3,5,8,9,11,5

3

Nominell ström

A

5 ~ 3000

4

Betygsatt pausström

De

16,20,31,5,40

5

Klassad kortslutningsström

De

40,50,80,100

6

Nominell kortslutning Dynamisk stabil ström

De

40,50,80,100

7

Klassad värmestallström

De

16,20,31,5,40

8

Klassad värmestabil tid

S

4

9

IP -examen


Ip2x

10

Bussystem


Enda buss eller med förbikoppling

11

Driftsmetod


Elektromagnetisk eller vårenergi lagringstyp

12

Dimensioner (bredd*Djup*Höjd)

mm

1100*1200*2650 (under 1000A)

13

Vikt

Kg

1000


◆ Struktur

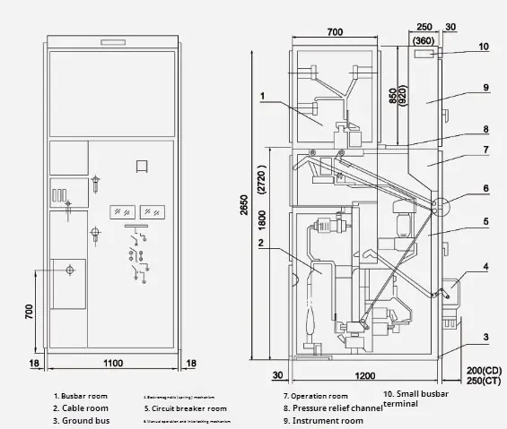
Denna XGN2-12 Box Type Fixed Metal stängd switchutrustning är en metallstängd lådestruktur, och utrustningsramen svetsas med vinkelstål. Utrustningen är uppdelad i ett brytningsrum, ett bussrum, ett kabelrum och ett relärum med stålplattor, och driften av huvudkomponenterna i utrustningen kan observeras genom observationsfönstret och belysningslampan på fasaden. För att förbättra utrustningens tekniska prestanda har de viktigaste komponenterna (såsom brytare och roterande avkopplingar) omarbetats. Enligt layouten för den xGn2-12-boxstyp som är fast metallstängd switchutrustning kan reläer installeras i relärummet, signalreläer, indikera instrument, signalbelysning kan installeras på dörren och installations- och driftsrummet för överföringsomkopplaren, med bussrummet på baksidan och kabelrummet vid den nedre delen, så att användarna kan ansluta ledningar. Fronten är brytningsrummet, vilket är bekvämt för underhåll av utrustning. Se figur 1 och figur 2 och produktmanualen för utrustningens interna mekanism.


● XGN □ -12/07D-konturritning

Box Type Fixed Metal Closed Switch Equipment

● XGN □ -12 (Outlet of Bypass Cable) Outline Ritning

Box Type Fixed Metal Closed Switch Equipment


● Övergripande dimensioninstallationsteckning

Box Type Fixed Metal Closed Switch EquipmentBox Type Fixed Metal Closed Switch Equipment


Hot Tags: Box Type Fixed Metal Stängd switchutrustning, Switch skåpstillverkare, China Leverantör, Kexun
Skicka förfrågan
Kontaktinformation
För förfrågningar om kabelgrenbox, högspänningsomkopplare, lågspänningsomkopplare eller prislista, vänligen lämna din e -post till oss så kommer vi att ha kontakt inom 24 timmar.
X
Vi använder cookies för att ge dig en bättre webbupplevelse, analysera webbplatstrafik och anpassa innehåll. Genom att använda denna sida godkänner du vår användning av cookies. Sekretesspolicy
Avvisa Acceptera