Produkt
Urban Distribution Network RMU
  • Urban Distribution Network RMUUrban Distribution Network RMU
  • Urban Distribution Network RMUUrban Distribution Network RMU
  • Urban Distribution Network RMUUrban Distribution Network RMU
  • Urban Distribution Network RMUUrban Distribution Network RMU
  • Urban Distribution Network RMUUrban Distribution Network RMU
  • Urban Distribution Network RMUUrban Distribution Network RMU

Urban Distribution Network RMU

KXRM6-12 Typ Urban Distribution Network RMU producerat av KEXR, en professionell kraftöverförings- och distributionstillverkare i Kina, är en 12kV kompakt gasisolerad ringnätverksskåp, som använder miljövänlig isolerande gas som isolerande medium och är lämplig för ringnätverk, kabelgrenning och terminalskydd av distributionsnätverk. Denna produkt har egenskaperna för miniatyrisering, intelligens och hög tillförlitlighet, som uppfyller utvecklingsbehovet för modernt smart rutnät.
Modell: KXRM6-12
Märke : Kexr

○ Designfunktion i KXRM6 -typen Urban Distribution Network RMU

KXRM6 Typ Urban Distribution Network RMU antar modulärt designschema, och dess grundläggande modulenheter är lastomkopplare, kombinerad elektrisk apparatmodul och andra speciella funktionella moduler. Varje kombination av dessa moduler utgör en gemensam boxstruktur. I den kombinerade modulen är vilken funktion som helst ungefär densamma som den interna strukturen för den grundläggande modulen.


○ Urban Distribution Network RMU Använda förhållanden

KXRM6-12 Typ Urban Distribution Network RMU är lämplig för hög och låg temperatur (+40 ℃ ~ -40 ℃), fuktighet, damm, saltföroreningar, gruvor, hög höjd (L000) och andra miljöer. Kortvarig nedsänkning i vatten inom 24 timmar påverkar inte användningen. Obs: Om höjden är högre, ange den specifika höjden.

○ Standarder

Urban Distribution Network RMU uppfyller standarderna nedan

▶ Internationella standarder

IEC60056, IEC60298, IEC60129, IEC60420, IEC60265, IEC60694, etc.

▶ Kinas standard

GB3804, GB3906, GB11022, etc.

○ Huvudtekniska parametrar för KXRM6-12 Typ Urban Distribution Network RMU

Urban Distribution Network Rmu


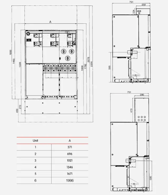
○ Strukturritning och dimensioner av Urban Distribution Network RMU

Urban Distribution Network RmuUrban Distribution Network RmuUrban Distribution Network RmuUrban Distribution Network Rmu



Hot Tags: Urban Distribution Network RMU
Skicka förfrågan
Kontaktinformation
För förfrågningar om kabelgrenbox, högspänningsomkopplare, lågspänningsomkopplare eller prislista, vänligen lämna din e -post till oss så kommer vi att ha kontakt inom 24 timmar.
X
Vi använder cookies för att ge dig en bättre webbupplevelse, analysera webbplatstrafik och anpassa innehåll. Genom att använda denna sida godkänner du vår användning av cookies. Sekretesspolicy
Avvisa Acceptera